Einfamilienhaus - Kauf - Nordhorn

Exklusives Wohnhaus in Nordhorn-Neuberlin - Stil, Komfort und Gartenparadies vereint

619.900 €
Nordhorn
Objektart
Haus
Objekttyp
Einfamilienhaus
Vermarktungsart
Kauf
PLZ
48529
Ort
Nordhorn
Zimmer
7
Schlafzimmer
3
Wohnfläche
180 m²
Grundstück
965 m²
Käuferprovision brutto
4,76 %

Beschreibung:

Dieses lichtdurchflutete und großzügig geschnittene Wohnhaus bietet höchsten Wohnkomfort und überzeugt durch seine durchdachte Raumaufteilung und die hochwertige Ausstattung. Das ca. 965 m² große Grundstück liegt in einer ruhigen Sackgasse von Nordhorn und garantiert Privatsphäre sowie eine angenehme Nachbarschaft.

Bereits beim Betreten des Hauses empfängt Sie ein großzügiger Eingangsbereich, der den offenen und einladenden Charakter des Hauses unterstreicht. Herzstück des Hauses ist die helle Wohnküche mit einer modernen Einbauküche aus 2025. Von hier aus gelangt man direkt in den stilvollen Wohn- und Essbereich, der sowohl Zugang zum gemütlichen Kaminzimmer als auch zum Wintergarten bietet – ideal für entspannte Stunden zu jeder Jahreszeit.

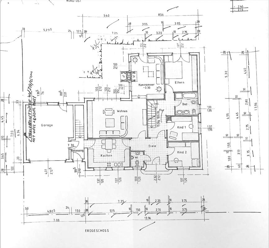
Aufteilung Erdgeschoss:
- Diele
- Küche
- Wohn- und Esszimmer
- Kaminzimmer
- Flur
- drei Schlafzimmer
- Bad
- Gäste-WC

Aufteilung Dachgeschoss:
- Flur
- zwei Schlafzimmer
- Bad
- Ausbaureserve

Aufteilung Kellergeschoss:
- drei Kellerräume
- Heizungsraum
- Abstellraum

Das Haus wurde 1984 erbaut und im Jahr 2022 umfassend modernisiert. Im Zuge der Sanierung wurden unter anderem neue Fenster mit charmanten Rundbögen eingebaut, Bodenbeläge erneuert, das Gäste-WC und das Badezimmer im Erdgeschoss modernisiert sowie eine effiziente Wärmepumpe in Kombination mit einer Gasheizung ((Verbrauch: ca. 600 m³ in 3 Jahren) installiert. Auch die Lüftungsanlage mit integrierter Kühlfunktion, die Wasseraufbereitungsanlage, der Elektroverteilungskasten, alle Innentüren und das Hauseingangselement wurden erneuert.

Dank der ebenerdigen Gestaltung eignet sich das Haus zudem ideal für barrierefreies Wohnen.

Im großzügigen Keller mit komfortabler Raumhöhe befindet sich viel zusätzlicher Stauraum. Ein Photovoltaik-Speicher mit 10 kW Kapazität ist ebenfalls vorhanden.

Der liebevoll angelegte Garten ist ein echtes Paradies und wurde von einem Landschaftsarchitekten gestaltet. Das blickdichte Südgrundstück überzeugt mit mehreren Terrassen, einem neuwertigen Grillkota, einem stilvollen Koi-Teich sowie einer automatischen Bewässerungsanlage – perfekt für Genießer und Gartenliebhaber.

Diese Immobilie vereint hochwertige Ausstattung, moderne Technik und eine ruhige Top-Lage zu einem ganz besonderen Wohnerlebnis.

Ausstattung:

Energieausweis:

  • A+
  • A
  • B
  • C
  • D
  • E
  • F
  • G
  • H
0
30
50
75
100
130
160
200
250
>250
Baujahr:
1984
Endenergiebedarf:
61,6 kWh/(m²a)
Energieausweis:
Bedarfsausweis
Energieeffizienzklasse:
B
Energieausweis gültig bis:
03.08.2035
wesentlicher Energieträger:
Strom
Baujahr lt. Energieausweis:
2022

Sonstige Angaben:

Widerrufsbelehrung für Verbraucher:
Sie haben das Recht, binnen vierzehn Tagen ohne Angabe von Gründen diesen Vertrag zu widerrufen. Die Widerrufsfrist beträgt vierzehn Tage ab dem Tag des Vertragsabschlusses.
Um Ihr Widerrufsrecht auszuüben, müssen Sie uns:
RE/MAX Immobilien Grafschaft Bentheim, Veldhausener Str. 34, 49828 Neuenhaus
Tel. 05941 – 98990 0, Fax. 05941 – 98990 29, E-Mail: info@remax-grafschaft.de
mittels einer eindeutigen Erklärung (z.B. ein mit der Post versandter Brief, Telefax oder E-Mail) über Ihren Entschluss, diesen Vertrag zu widerrufen, informieren. Zur Wahrung der Widerrufsfrist reicht es aus, dass Sie die Mitteilung über die Ausübung des Widerrufsrechts vor Ablauf der Widerrufsfrist absenden.
Folgen des Widerrufs:
Wenn Sie diesen Vertrag widerrufen, haben wir Ihnen alle Zahlungen, die wir von Ihnen erhalten haben, unverzüglich und spätestens binnen vierzehn Tagen ab dem Tag zurückzuzahlen, an dem die Mitteilung über Ihren Widerruf dieses Vertrags bei uns eingegangen ist. Für diese Rückzahlung verwenden wir dasselbe Zahlungsmittel, das Sie bei der ursprünglichen Transaktion eingesetzt haben, es sei denn, mit Ihnen wurde ausdrücklich etwas anderes vereinbart; in keinem Fall werden Ihnen wegen dieser Rückzahlung Entgelte berechnet. Haben Sie verlangt, dass die Dienstleistungen während der Widerrufsfrist beginnen soll, so haben Sie uns einen angemessenen Betrag zu zahlen, der dem Anteil der bis zu dem Zeitpunkt, zu dem Sie uns von der Ausübung des Widerrufsrechts hinsichtlich dieses Vertrags unterrichten, bereits erbrachten Dienstleistungen im Vergleich zum Gesamtumfang der in Vertrag vorgesehenen Dienstleistungen entspricht.

Käuferprovision:
Die auf Seite 2 genannte Käuferprovision (inkl. gesetzlicher Umsatzsteuer, derzeit 19%) ist vom Käufer zu zahlen. Verdient und fällig wird diese erst mit notarieller Beurkundung. Die Berechnungsgrundlage ist der notariell festgeschriebene Kaufpreis.

Sämtliche Angebote sind freibleibend und basieren auf Informationen, die der Eigentümer erteilt hat; eine Haftung für deren Richtigkeit und Vollständigkeit kann deshalb nicht übernommen werden. Zwischenverkauf bzw. -vermietung bleibt dem Eigentümer vorbehalten.
Gerfried Gosselink
Gerfried Gosselink
Frank grote Hölmann e.K.
0 59 41 - 98 990-17
Jeder Lizenznehmer ist ein rechtlich eigenständiges Unternehmen und handelt auf eigene Rechnung und Verantwortung.